-
대전재개발 | 대전동구 | 삼성동4구역 | 관리처분인가 고시 | 조합원수 | 위치 | 전망 | 알아보기이슈 & 정보 2024. 12. 18. 08:07728x90300x250
대전 동구 삼성4구역 재개발사업이 관리처분계획인가 고시를 받으며 사업 진행에 탄력을 받고 있습니다.
해당 구역에 대한 주요 정보는 다음과 같습니다

위치 및 규모
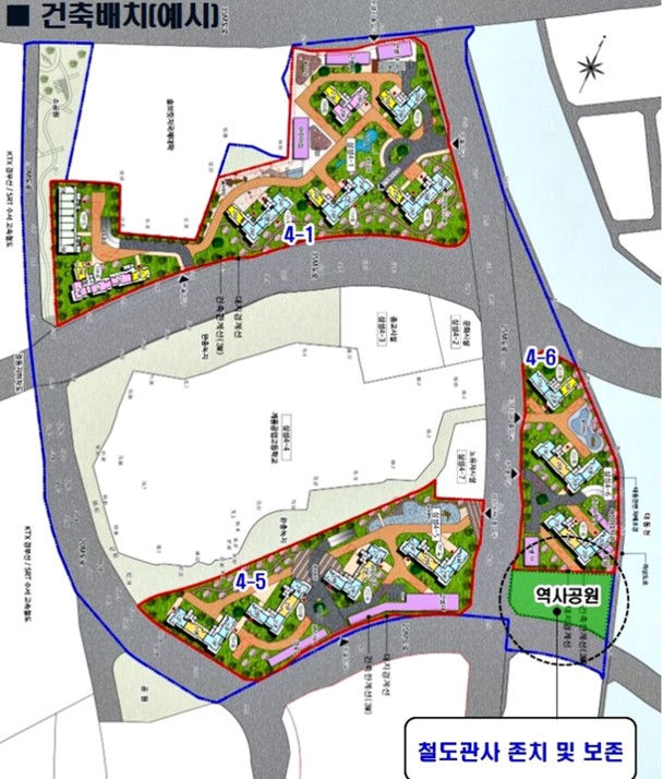
- 위치: 대전광역시 동구 삼성동 80-100번지 일대[1]
- 면적: 13만9,058㎡[1]
- 세대수: 1,350가구 (15개동, 지하4층~지상29층)[1][4]
사업 주체 및 시공사
- 조합장: 유석두[2][4]
- 조합원 수: 약 350~360명[2][5]
- 시공사: DL이앤씨 (구 대림산업)[4][5]
사업 진행 현황
- 2015년 10월: 대전역세권재정비촉진지구로 변경 고시[4]
- 2019년 3월: 조합설립인가[2]
- 2022년 11월: 사업시행계획인가 통보[4]
- 현재: 관리처분계획인가 고시 완료
향후 진행 단계
1. 조합원 분양
2. 이주 및 철거
3. 착공
4. 일반분양
5. 준공 및 입주
투자 가치
삼성4구역은 다음과 같은 이유로 투자 가치가 높다고 평가됩니다:
1. 우수한 교통 여건 : 지하철 1호선, KTX 대전역 인접[1]
2. 양호한 교육 환경 : 삼성초, 가양초, 자양초, 한밭중, 대성여중, 대성여고, 우송고 등 인근[1]
3. 친환경 인프라: 대동천 산책로, 고봉산, 식장산 등 녹지 공간 인접[1]
4. 역세권 개발 수혜: 대전역 중심의 역세권 개발로 인한 미래 가치 상승 기대[6]
5. 높은 사업성 : 비례율 109%로 타 사업지구 대비 높은 사업성 예상[6]
주의사항
- 부동산 시장 상황에 따라 일반분양 시기가 유동적일 수 있음[4]
- 과거 철도관사촌 보존 문제로 갈등이 있었으나, 역사공원 조성을 통해 해결됨[4]
삼성4구역 재개발사업은 대전역세권 개발과 맞물려 진행되고 있어, 향후 대전 동구의 새로운 주거 중심지로 부상할 것으로 전망됩니다. 다만, 부동산 투자는 항상 리스크가 동반되므로 신중한 접근이 필요합니다.

출처
[1] 삼성4구역, 재개발 통해 1350가구로 탈바꿈 - 위클리한국주택경제신문 http://www.arunews.com/news/articleView.html?idxno=30062
[2] 대전 동구 삼성 4구역, 시공사 대림산업 선정 - 충청신문 https://www.dailycc.net/news/articleView.html?idxno=543384
[3] [대전광역시/동구/삼성동, 소제동, 성남동] 대전역 주변 재개발 관련 ... https://entwurf.tistory.com/123
[4] 대전역세권 내 삼성4구역 재개발사업 탄력 - 중도일보 https://m.joongdo.co.kr/view.php?key=20221205010001223
[5] 대전 동구 삼성 4구역 재개발사업, 시공사 '대림산업' 선정 https://www.daejonilbo.com/news/articleView.html?idxno=1375255
[6] 대전 삼성동 재개발, 역세권 개발 호재로 '급물살' - 충청투데이 https://www.cctoday.co.kr/news/articleView.html?idxno=2204009
[7] 대전 동구 삼성4구역재개발 대림이 짓는다 - 중도일보 https://m.joongdo.co.kr/view.php?key=20190623010008663
[8] '삼성동 삼성4구역' 재개발 - 리치고 https://m.richgo.ai/realty/place/redevelop/d6WPjTD728x90반응형'이슈 & 정보' 카테고리의 다른 글